




Dom Śródziemnomorski
Lokalizacja: Niepołomice
Powierzchnia: 254m² + 38m² garażu
Projekt: 2025
Realizacja: 2026
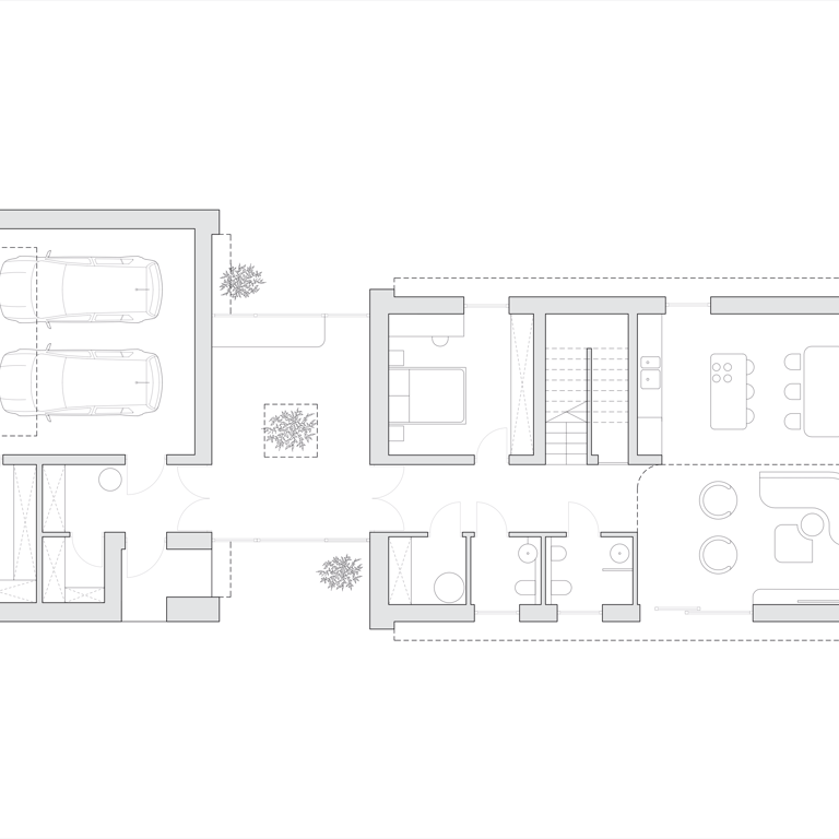
Inspirowany architekturą południowych Włoch dom wiejski stanowi odpowiedź na potrzebę wytchnienia od miejskiego zgiełku. Zlokalizowany w otoczeniu Puszczy Niepołomickiej, dzięki oszczędnej formie oraz zastosowaniu naturalnych materiałów — kamienia elewacyjnego i łupka dachowego — harmonijnie wpisuje się w spokojny, sielski krajobraz. Posadowienie na działce i funkcję budynku zdeterminowały jednocześnie wąska parcela, jak i precyzyjnie określone potrzeby inwestorki. Wysunięta ku drodze bryła garażu tworzy naturalną barierę, dyskretnie oddzielającą część mieszkalną od ulicy i zapewniającą domownikom poczucie prywatności. Pomiędzy bryłami umieszczono przeszkloną przewiązkę, w której zaprojektowano hol z wewnętrzną zielenią. Dzięki temu pomieszczenie, zazwyczaj pełniące wyłącznie funkcję komunikacji, staje się miejscem wyciszenia i naturalnym przedłużeniem części dziennej budynku. Salon z wysokim sufitem został otwarty na główną część ogrodu i doświetlony reprezentacyjnymi, panoramicznymi przeszkleniami. Piętro stanowi niemal w całości prywatną przestrzeń Pani domu. Znajduje się tu komfortowa sypialnia z łazienką, a także wydzielona strefa do ćwiczeń oraz obszerna garderoba połączona ze studiem pracy.
